«Стотонный» Komatsu HD465-7R
Komatsu HD465-7R представляет собой карьерный самосвал, который предназначен для перевозки сыпучих грузов и скальных пород, а также выполнения транспортировочных операций при возведении крупных строительных объектов, а его эксплуатация возможна даже при неблагоприятных дорожных и климатических условиях.
Он сочетает в себе внушительные грузовые возможности, крепкую и надежную конструкцию, современное оснащение.

На Komatsu HD465-7R применена современная кабина с большой площадью остекления, внутри которой размещена эргономично спроектированная передняя панель и два посадочных места (с водительской стороны – с пневматической подвеской, регулировками в пяти направлениях и ремнем безопасности).

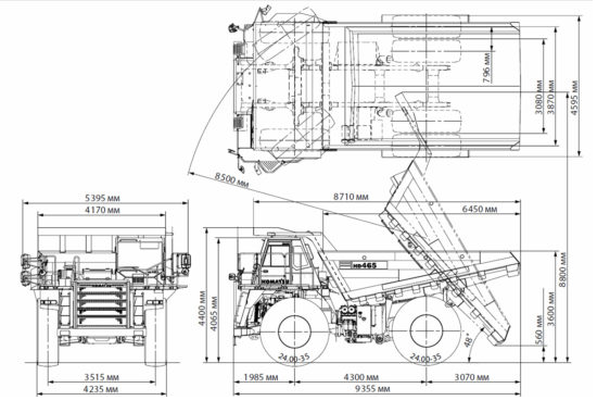
В длину карьерный самосвал простирается на 9355 мм, из которых 4300 мм приходится на межосевое расстояние, в ширину достигает 5395 мм (без учета зеркал – 4235 мм), в высоту укладывается в 4400 мм. Дорожный просвет машины составляет 645 мм, величина передней и задней колеи у нее насчитывают 3515 мм и 3080 мм соответственно, а минимальный радиус поворота равняется 8500 мм.

В снаряженном виде «японец» весит 43 100 кг, его грузоподъемность доходит до 56 580 кг, а полная масса не должна превышать 99 680 кг (из них на переднюю часть опирается 31 898 кг, а на задний мост – 67 782 кг). Стандартно Komatsu HD465-7R оснащается коробчатым кузовом, выполненным из высокопрочных видов стали, с V-образным днищем, нагревом выхлопными газами и максимально допустимым углом подъема в 48 градусов. Длина и ширина внутренней поверхности грузовой платформы составляют 6450 мм и 3870 мм соответственно, а вместимость достигает 25 кубических метров (с «шапкой» – до 34.2 кубометров). «Сердцем» карьерного самосвала является рядный шестицилиндровый дизель Komatsu SAA6D170E-5 рабочим объемом 23.15 литра с водяным охлаждением, турбокомпрессором, непосредственным впрыском, интеркулером и системой принудительной смазки с приводом от шестеренчатого насоса, который развивает 739 лошадиных сил (551 кВт) при 2000 об/минуту и 3325 Н•м крутящего момента при 1300 об/минуту. Мотор трудится совместно с 7-ступенчатой полностью автоматической коробкой передач планетарного типа, направляющей запас мощности в полном объеме на колеса заднего моста. В основе Komatsu HD465-7R лежит мощная рама коробчатого типа, которая скроена из стали высокопрочных марок. Грузовик укомплектован независимыми гидропневматическими подвесками, рулевым управлением с гидроусилителем и парой цилиндров двойного действия, а также 780-литровым топливным баком. На передней оси машины установлены тормоза дискового типа с суппортом, а на задней – устройства многодискового вида («по кругу» – с полностью гидравлическим управлением).
Штатно карьерный самосвал оснащается: электронной системой контроля данных технического обслуживания, сиденьем водителя с пневмоподвеской, сервоприводом левого стекла, рулевой колонкой, настраиваемой в двух положениях, зеркалами заднего вида, технологией предупреждения о работе мотора вразнос и другим оборудованием.